Доставка рассчитывается индивидуально
Канализационный лотковый крестовинный колодец FD предназначен для оборудования, эксплуатации и обслуживания систем безнапорной хозяйственно-бытовой канализации, водоотведения стоков промышленных предприятий, дождевых осадков и грунтовых вод.
Пластиковый крестовинный колодец FD является прекрасной альтернативой железобетонным колодцам. Канализационный сварной колодец FD SVT представляет собой монолитную герметичную конструкцию. Подведение гофрированных двухслойных труб FD соответствующего проектного диаметра осуществляется непосредственно в шахту колодца. Колодцы поступают на строительную площадку полностью готовыми к установке, что существенно сокращает время монтажа систем. В качестве шахты используется спиральновитая труба с кольцевой жесткостью: SN2, SN4, SN4, SN6, SN8.
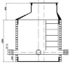
Комплектация Канализационный лотковый крестовинный колодец FD включает в себя:
- Люк
- Лестница
- Горловина и заглушка к шахте
- Шахта
- Лоток
- Патрубок 110/94 (4 шт)
- Манжета 110/94 (4 шт)
- Патрубок для бетонирования 160 (2 шт)
Подробные характеристики Канализационный лотковый крестовинный колодец FD
| Характеристики колодца | |
|---|---|
| Наименование | лотковый крестовинный FD |
| Вид колодца | канализационный |
| Диаметр корпуса, мм | 1000 |
| Высота корпуса, мм | 1405 мм |
| Объем рабочей камеры, л | 785 |
| Объём, м3 | 0.79 |
| Материал корпуса | ПНД |
| Количество, шт площадок для ввода труб | 4 |
| Диаметр патрубков, мм | 110 |
| Производитель | FDplast |
| Срок эксплуатации, лет | 50 |
| Форма | циллиндр |
| Характеристики горловины | |
| Горловина | да |
| Диаметр горловины, мм | 600 |
| Высота горловины, мм | 405 |
| Крышка | да |
Описание корпуса Канализационный лотковый крестовинный колодец
Крестовинный колодец FD изготавлен из полиэтилена низкого давления (ПНД), представляет собой сварную конструкцию. Лотковый колодец FD отличается наличием в нижней части шахты лотка – кинеты - для организации разводки труб. Неотъемлемой частью колодца является камера для бетонирования, позволяющая закрепить колодец в грунте на месте строительства. В конструкции типового колодца предусмотрены два патрубка диаметром 160 мм для заливки бетона.
Дополнительная вкладка, для размещения информации о магазине, доставке или любого другого важного контента. Поможет вам ответить на интересующие покупателя вопросы и развеять его сомнения в покупке. Используйте её по своему усмотрению.
Вы можете убрать её или вернуть обратно, изменив одну галочку в настройках компонента. Очень удобно.
