Доставка рассчитывается индивидуально
Применяется для замера объемов поступающей и выходящей воды. Для этих целей колодцы комплектуются механическими. магнитно-электрическими или лазерными водомерами.
Водомерный сварной колодец FD SVT изготавливается из спиральновитой трубы FD. Спиральновитые шахты благодаря уникальной конструкции стенки имеют большие показатели кольцевой жесткости при существенно меньшем весе. Типовой сварной колодец состоит из шахты, горловины и заглушки. Подведение гладких труб соответствующего проектного диаметра осуществляется непосредственно в шахту колодца.
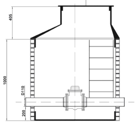
Комплектация Водомерный колодец FD включает в себя:
- Люк
- Лестница
- Горловина и заглушка к шахте
- Шахта
- Патрубок 110/94 (2 шт)
- Счетчик воды Groen WTC
- Фланец (2 шт)
Подробные характеристики Водомерный колодец FD
| Характеристики колодца | |
|---|---|
| Наименование | Водомерный FD |
| Вид колодца | водопроводный |
| Диаметр корпуса, мм | 1000 |
| Высота корпуса, мм | 1405 мм |
| Объем рабочей камеры, л | 785 |
| Объём, м3 | 0.79 |
| Материал корпуса | ПНД |
| Количество, шт площадок для ввода труб | 2 |
| Производитель | FDplast |
| Срок эксплуатации, лет | 50 |
| Форма | циллиндр |
| Характеристики горловины | |
| Горловина | да |
| Диаметр горловины, мм | 600 |
| Высота горловины, мм | 405 |
| Крышка | да |
Описание корпуса Водомерный колодец FD
Водомерный пластиковый колодец FD применяется на напорных водопроводно-канализационных сетях для обслуживания размещенного в них контрольно-измерительного оборудования, запорно-регулирующей арматуры и пожарных гидрантов. Водомерный колодец применяется для замера объемов поступающей и выходящей воды установленными в них механическими, магнитно-электрическими или лазерными водомерами.
Дополнительная вкладка, для размещения информации о магазине, доставке или любого другого важного контента. Поможет вам ответить на интересующие покупателя вопросы и развеять его сомнения в покупке. Используйте её по своему усмотрению.
Вы можете убрать её или вернуть обратно, изменив одну галочку в настройках компонента. Очень удобно.
